Experiential
TV & Film
Contact
About
Experiential
TV & Film
Contact
About
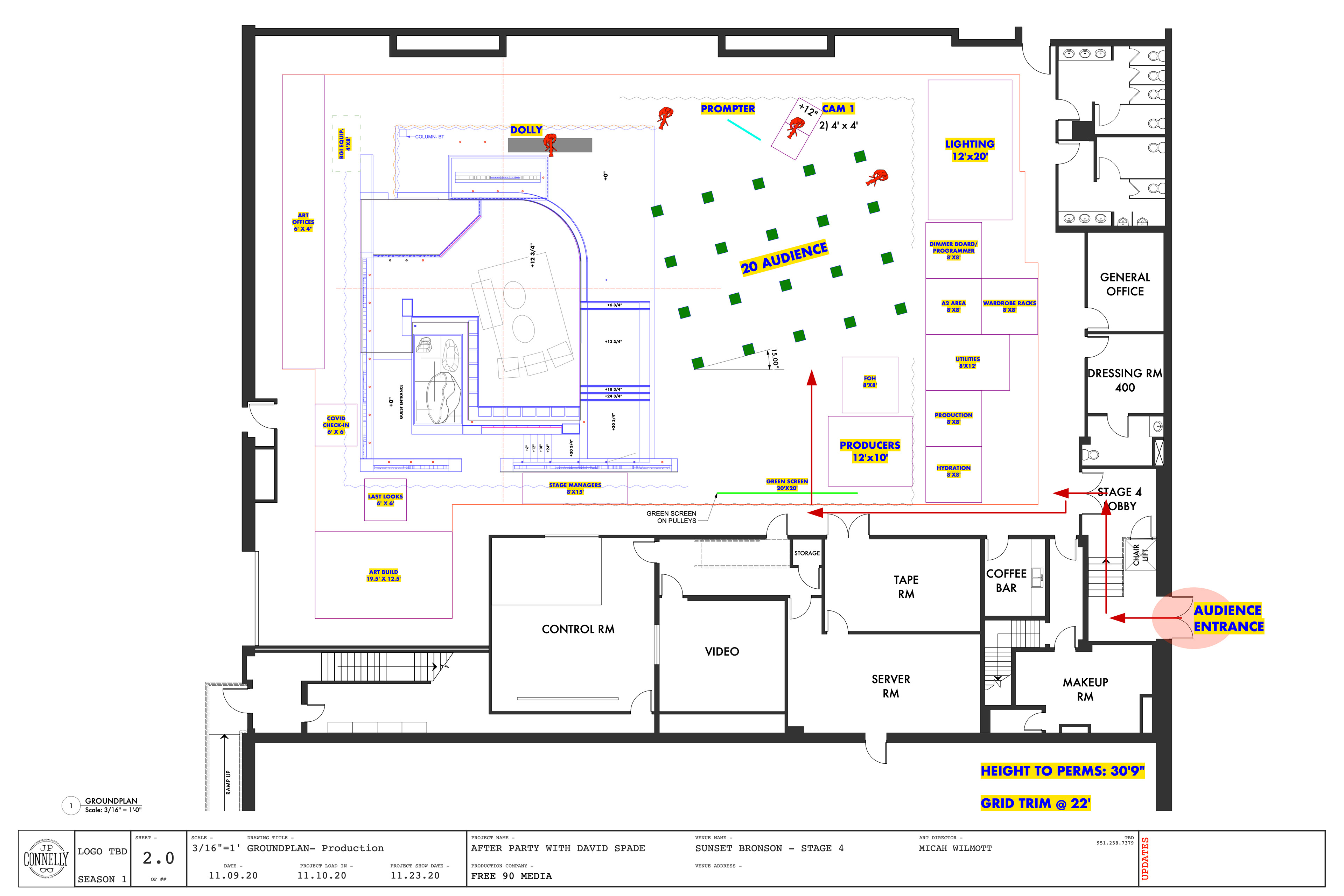
The Netflix Afterparty
CLIENT: Netflix
DESIGNER: James Pearce Connelly
AIR DATE: December 2020
ROLE: Art Director
↑
Back to Top