Experiential
TV & Film
Contact
About
Experiential
TV & Film
Contact
About
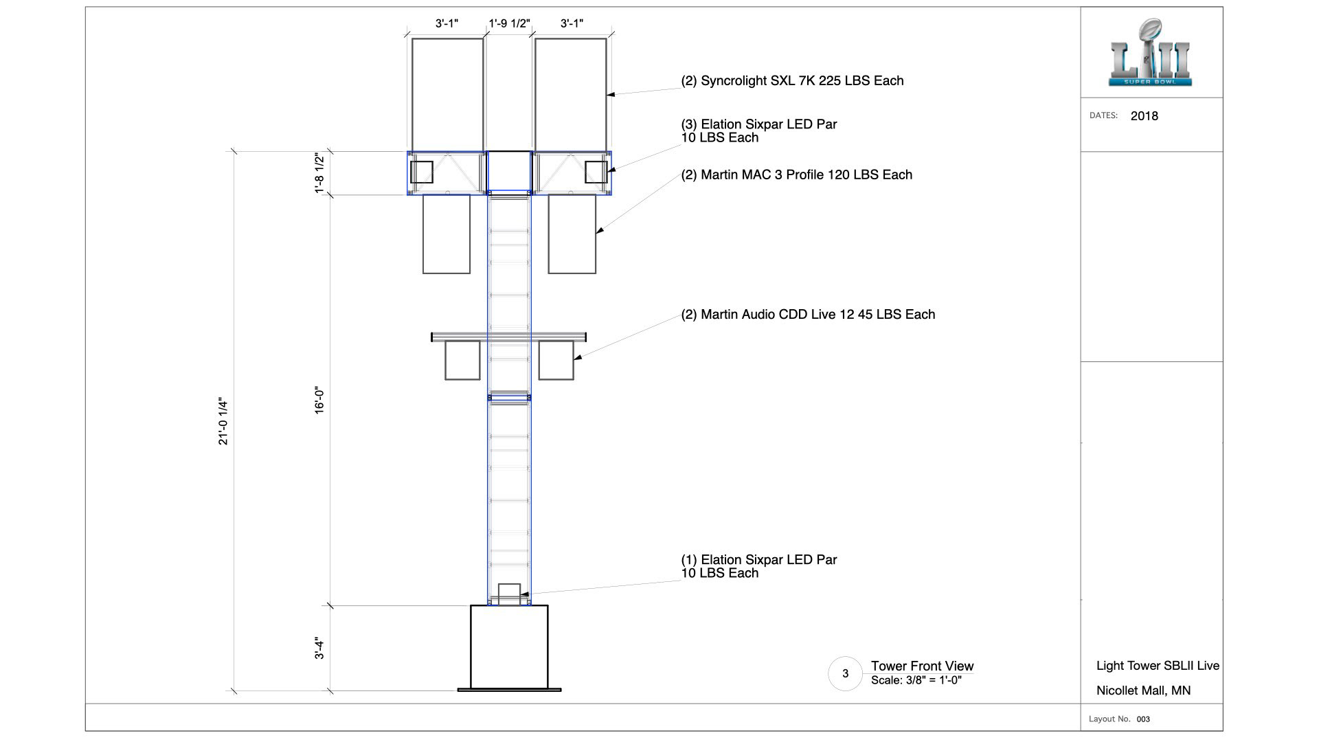
NFL - SBLII
CLIENT: NFL
DATE: January 2018
ROLE: Design Team Member
↑
Back to Top