Experiential
TV & Film
Contact
About
Experiential
TV & Film
Contact
About
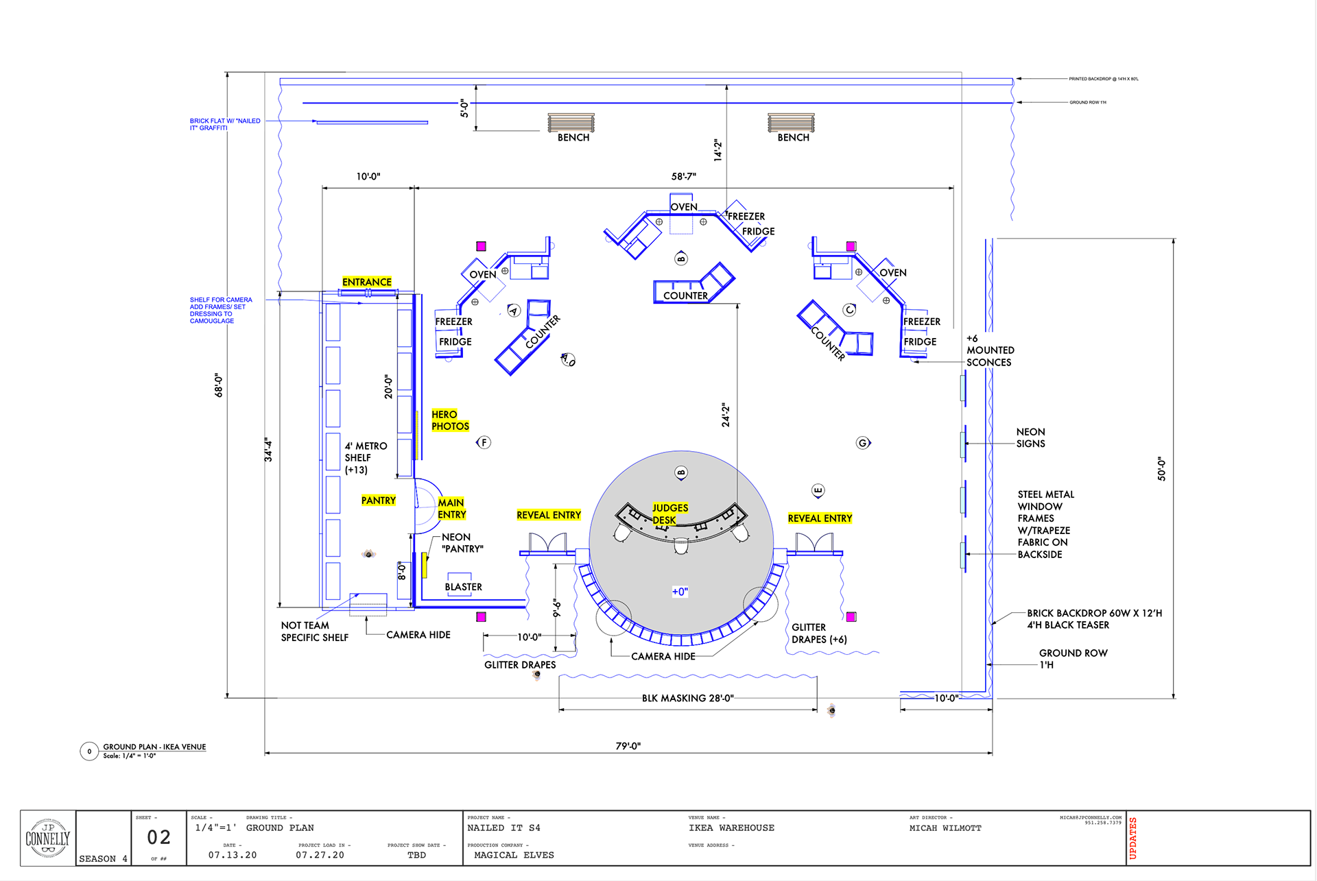
Nailed It! Season 5
Season 5
CLIENT: Netflix
DESIGNER: James Pearce Connelly
AIR DATE: April 2021
ROLE: Art Director
↑
Back to Top